Villa Lot 9
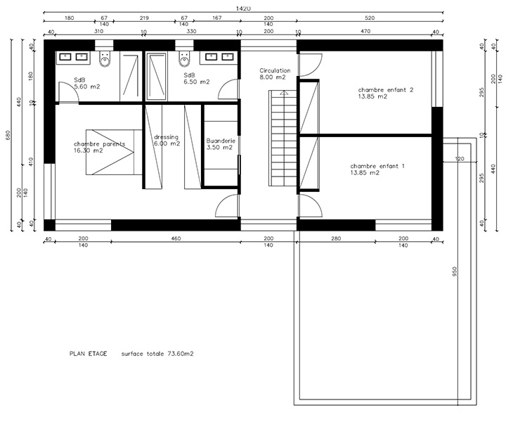
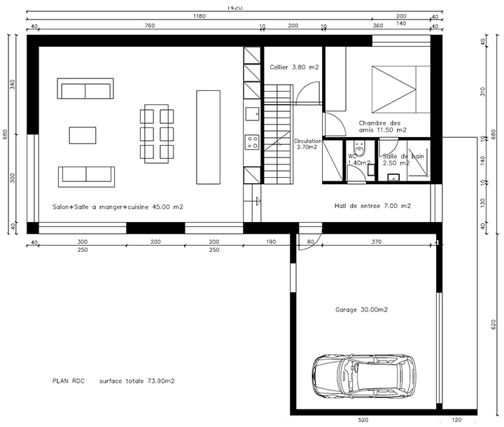
The villa is located in Lotissement "Bellevue" in Bellegarde, France. The house is 14m long and 6.8m wide. It is composed of a simple, compact and contemporary main structure. In order to benefit from maximum sunshine, the living rooms are oriented to the South.
Category:
Residential
Area:
150m2
Status:
Completed
Certification:
RT 2012
Client:
Privat
Year:
2017


